10061 Dulbecco St, Orlando, FL 32827
Açıklama
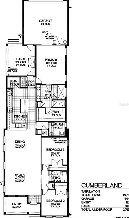
Bir ya da daha fazla fotoğraf sanal olarak sahnelenmiştir. İnşaat aşamasında. Dreamfinders Homes’un Cumberland modeli ile lüks yaşamın zirvesine adım atın. Laureate Park’ın huzurlu bir topluluğunda yer alan bu tek katlı şaheser, her köşesinde zarafet ve cazibe yayıyor. İçeri girdiğinizde, geniş pencerelerden süzülen bol doğal ışıkla karşılanacaksınız; açık konsept oturma alanını aydınlatıyor. Şık girişten ferah oturma odasına akıcı geçiş, hem dinlenme hem de eğlence için mükemmel bir atmosfer yaratıyor. Şef mutfakta, formun fonksiyonla buluştuğu; şık, üst düzey aletler, tasarım dolaplar ve muhteşem kuvars tezgahlarla etkileyici bir deneyim yaşayacaksınız. İster gurme bir akşam yemeği daveti verin, ister ailenizle sıradan bir yemek yiyin, bu mutfak cenneti kesinlikle sizi etkileyecek. Lüks ana suite’e çekilin; konfor ve huzurun bir sığınağı olan bu alan, spa benzeri bir özel banyo ve geniş bir giyinme odası sunuyor. İki ek özenle döşenmiş yatak odası, misafirler veya büyüyen bir aile için yeterli alan sunuyor; her biri konfor ve stil düşünülerek tasarlanmış. Ancak Cumberland modeli bununla sınırlı kalmıyor. Dışarıda, özel açık hava cennetinizin huzurunun tadını çıkarın; yemyeşil peyzaj ve kapalı bir teras, al fresco yemekler veya uzun bir günün ardından dinlenmek için mükemmel bir arka plan sunuyor. Eşsiz zanaatkarlık, detaylara dikkat ve lüks özellikler yelpazesi ile Dreamfinders Homes’un Cumberland modeli, sadece bir ev değil – aynı zamanda zarif bir yaşam tarzının ifadesidir. Modern lüksün zirvesini deneyimleme şansını kaçırmayın. Bugün özel turunuz için randevu alın ve hayalinizdeki evi gerçeğe dönüştürün.
Özellikler ve Olanaklar
Mülk Haritası
Harita
Ödeme Hesaplayıcısı
Ödeme Hesaplayıcısı
- Ana Para ve Faiz
- Emlak Vergisi/aylık
- HOA ücreti












