10214 Ryder Road, San Antonio, TX 78254
Açıklama
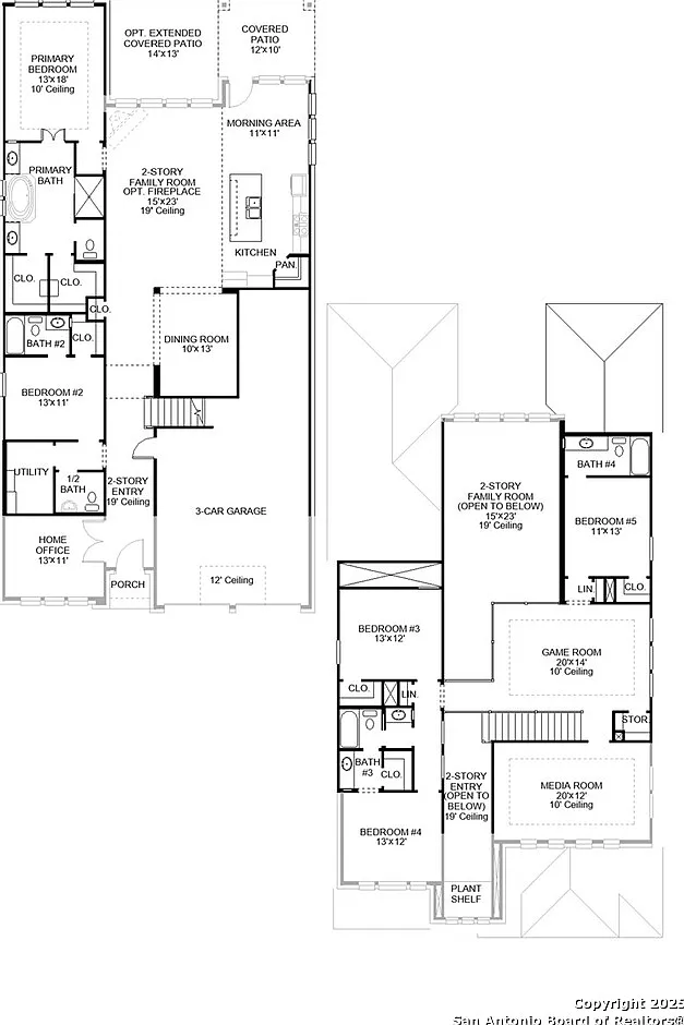
Çift kapılı ev ofisi girişin çerçevesini oluşturuyor. İki katlı giriş, yemek odasından mutfak ve aile odasına kadar uzanıyor. Ada mutfak, gömme oturma alanı, 5 ocaklı gazlı ocak ve köşe yürüme kiler sunuyor. Resmi yemek odası. 5.8 metre tavan yüksekliğine sahip iki katlı aile odası ve bir duvar dolusu pencere. Mutfak bitiminde yer alan sabah alanı, arka bahçenin güzel manzarasını sunuyor. Üç büyük pencereye sahip ana suit. Ana banyonun Fransız kapı girişi, çift lavabosu, bağımsız küveti, ayrı cam kapalı duşu ve iki yürüme dolabı bulunuyor. İlk seviyede tam banyo ve bir yürüme dolabı olan misafir suit. İkinci kat, geniş bir oyun odası, medya odası, ilave bir misafir suit ve Hollywood banyolu ek yatak odaları barındırıyor. Ek depolama alanı, yarım banyo, nevresim dolabı ve bir hizmet odası bu cömert tasarımı tamamlıyor. Uzatılmış kapalı arka bahçe terası ve 5 bölgeli sprinkler sistemi. Üç araçlık garaj.
Özellikler ve Olanaklar
Mülk Haritası
Harita
Ödeme Hesaplayıcısı
Ödeme Hesaplayıcısı
- Ana Para ve Faiz
- Emlak Vergisi/aylık
- HOA ücreti












