10922 Skyway Ln, Missouri City, TX 77459
Açıklama
YENİ İNŞAAT – Newmark Homes Portrait Serisi, Crescent Springs’te Sienna’da!
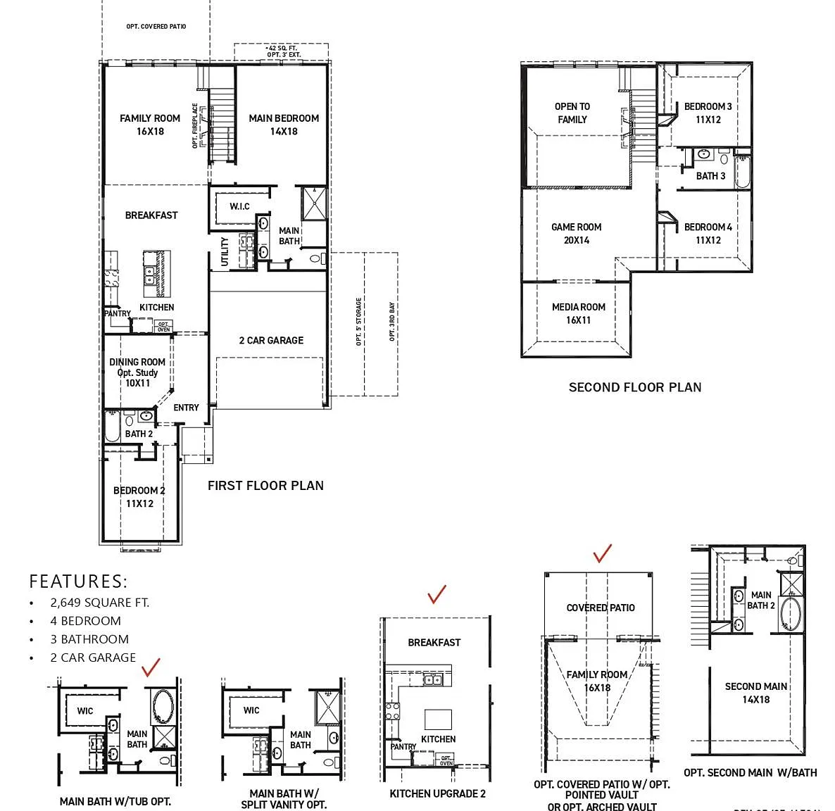
POPÜLER ARMSTRONG Planı – Her şeye sahip! Elev C – 2 Katlı – 4 Yatak Odası (2’si alt katta), 3 Tam Banyo, esnek yemek/çalışma alanı, 2 katlı oturma odası, oyun odası ve medya katı.
Büyük şef mutfağı, kahvaltı barı ve yemek alanı ile birlikte.
Bu güzellik, açık konsept yaşam alanı ve etkileyici mimari unsurlar sunuyor. Kubbeli yüksek tavan, yükseltilmiş tavanlar ve pencere duvarı ile bol doğal ışık alıyor.
Çift kapılar, büyük, örtülü verandaya açılıyor ve açık hava etkinlikleri için alan sunuyor. Arka komşu yok. Modern detaylar, lüks kuvars tezgâhları, ana alanlarda ahşap zeminler içeriyor. Enerji verimliliği özellikleri arasında sprey köpük yalıtım, şişesiz su ısıtıcı bulunuyor. Tam sulama sistemi ve yağmur olukları mevcut.
Özellikler ve Olanaklar
Mülk Haritası
Harita
Ödeme Hesaplayıcısı
Ödeme Hesaplayıcısı
- Ana Para ve Faiz
- Emlak Vergisi/aylık
- HOA ücreti












