Arama sonuçlarınız

11 Elliot Mls #11, Norfolk, MA 02056

11 Elliot Mls #11,
$ 849.900

2 Yatak

3 Banyo

2,335.00 ft2

Açıklama

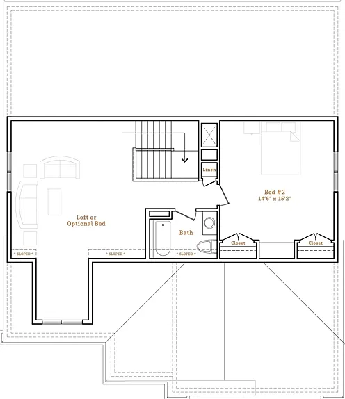
Waites Crossing’a hoş geldiniz. Bu, 230 m²’den büyük, 2 araç kapasiteli otoparkı olan müstakil daire, ana yatak odası zemin katta, çift kişilik lavabo, fayans kaplı duş ve yürüyüş dolabı ile birlikte sunulmaktadır. Evdeki odaların merkezi, özel açık alana erişimi olan geniş bir aile odasının yanında bulunan yemek alanıdır. Zemin katta ayrıca bol miktarda pencereye sahip güzel bir yemek odası, misafir tuvaleti ve geniş bir çamaşır odası yer almaktadır. Üst katta ek büyük bir yatak odası, tam bir banyo ve evden çalışma ofisi, ek bir oturma odası veya spor alanı olarak kullanılabilecek bir loft bulunmaktadır. Bu alan için seçenekler sonsuzdur. Güzel bitişler ve cömert inşaatçı ödenekleri. Ziyaretinizi planlayın ve yeni evinizi özelleştirmeye başlayın. Kolaylıklara erişim ve pastoral bir ortamın avantajlarından yararlanın.

Özellikler ve Olanaklar

Diğer Özellikler
Giriş Deck - Kompozit
İnternet Mevcut - Bilinmiyor
Profesyonel Peyzaj
Yağmur Giderleri

Mülk Haritası

Harita

taşıma
Süpermarketler
Okullar
Restoranlar
Eczaneler
Hastaneler

Ödeme Hesaplayıcısı

Ödeme Hesaplayıcısı

$ 5,138.84
Aylık
  • Ana Para ve Faiz
  • Emlak Vergisi/aylık
  • HOA ücreti
$ 4,076.46

Bu Ev İçin Bize Ulaşın

Gayrimenkul Danışmanı

Aydin Kayabay

Massachusetts Gayrimenkul Danışmanı
Üyesi: Realty ONE Group Cosmopolitan
License Number: 9589550

/ Gayrimenkul Danışmanı

Benzer İlanlar

Satılık
Aktif

10 Elliot Mls #29, Norfolk, MA 02056

$ 849.900
Waites Crossing'a hoş geldiniz. Bu müstakil 213 m², 2 araçlık garaja sahip olan konut, zem ...
3 3 2,335.00 ft2ayrıntılar
Satılık
Aktif

8 Elliot Mls #30, Norfolk, MA 02056

$ 859.900
Waites Crossing'a hoş geldiniz. Bu, 2,400+ ft² (yaklaşık 223 m²) büyüklüğünde, 2 araç kapa ...
3 3 2,426.00 ft2ayrıntılar
Satılık
Aktif

29 Stop River Rd, Norfolk, MA 02056

$ 1.395.000
Bu ev gerçekten bir mücevher, yaşamak isteyeceğiniz bir yer. Sıcak ve davetkar bir mülk, t ...
4 6 4,073.00 ft2ayrıntılar

Listeleri Karşılaştır

Aydin Kayabay