135 Hillside Dr, East Palestine, OH 44413
Açıklama
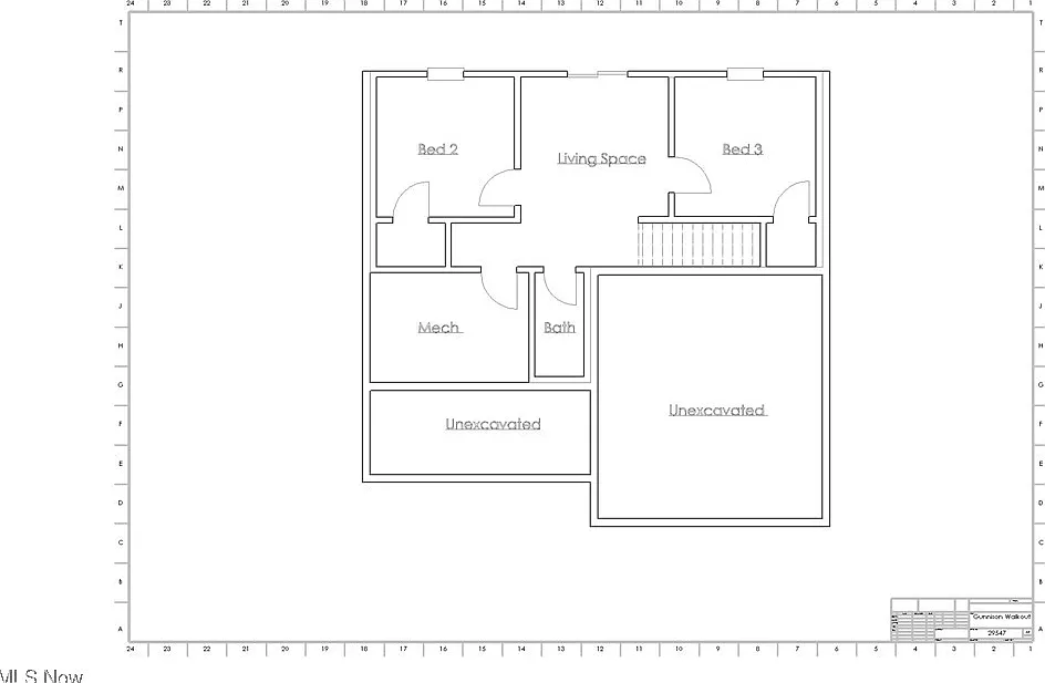
Leslie Run Estates’te şu anda bir yürüyüşle çıkılabilir alt katı olan muhteşem bir çiftlik evi inşa ediliyor! Taşınma için tahmini Mart-Nisan 2026’da hazır olması bekleniyor! Bu sıradan bir inşaat değil, bu özel çiftlik evi yüksek kalitede ve şık detaylar sunacak. Dış mekan, beton giriş, yürüyüş yolu ve arka bahçe terası ile birlikte yerleştirme ve bahçe paketi sunacak. Ayrıca alt terasa ve arka bahçeye inen merdivenlerle birlikte üst kat terası da olacak. ProVia’nın Keteni Rengi PVC Dış Cephe Kaplaması, bej garaj kapısı ve çevresi ile taş skirti ile birlikte olacak! Çatı kaplaması Owens Corning Duration Şingılları’ndan Driftwood renginde. Aspect ProVia pencereleri bej PVC ve ön kapı muhteşem orta meşe ahşap kaplama ile yapılacak. İç kısımda ahşap görünümlü LVT zemin, nötr boyama tonları, bej kenarlar, krema rengi duvarlar ve bej iç kapılar yer alacak. Dinette ve mutfak için erişim sağlayan açık bir geniş oda! Dinette, üst kat terasına açılan kayar kapılara sahip. Mutfak dolapları, uyumlu ada dolapları ve sıcak kuvars tezgahlarla tan ahşap ince shaker tarzında olacak. Ayrıca mutfakta birinci kat çamaşır odası erişimi de bulunuyor. Halı kaplı birinci kat yatak odası, yumuşak halı, nötr boyama tonları, yürüyüş dolabı, bol doğal ışık ve modern tavan fanı sunuyor. Misafir banyo, küvet ve duş kombinasyonuna sahip. Mutfakla uyumlu tezgah ve dolaplar. Şampanya bronz tesisat bitişleri ve aydınlatma! Olağanüstü alt kat yürüyüşle çıkılabilir alana adım atın. Bu, sizin özel yaşam sığınmanız olacak! Alt kat, mahremiyetinizi düşünerek tasarlandı! Ana süit, kapatma öncesi kapsamlı ön tamamlama yürüyüşü ve oryantasyon alanında yer alıyor. Tüm inşaatçı dahil özellikler ve garantiler talep üzerine sağlanabilir.. TAM YÜRÜYÜŞLE ÇIKILABİLEN ARKA ZEMİN, yürüyüşle çıkılabilir aile odasından kayar kapılardan ve arka bahçeye ve alttaki terasa inen merdivenleri olan geniş odadan.
Özellikler ve Olanaklar
Mülk Haritası
Harita
Ödeme Hesaplayıcısı
Ödeme Hesaplayıcısı
- Ana Para ve Faiz
- Emlak Vergisi/aylık
- HOA ücreti







