1647 Arden Bnd, Fairborn, OH 45324
Açıklama
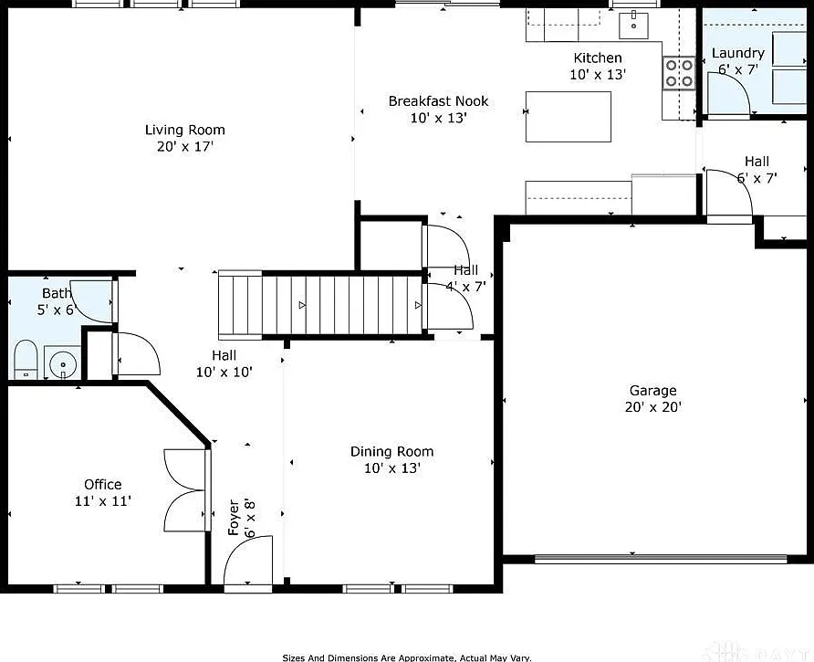
Bu yüksek seçenekli ev, tamamen tükenmiş olan popüler Arden Place’de sadece üç yaşında ve içi ve dışıyla güncellemelerle dolu. %4.75 VA devralınabilir ipotek, mevcut faiz oranlarını geçme şansı sunuyor. Birinci kat boyunca 9 feet (yaklaşık 2.74m) tavan yüksekliği, modern bir hacim hissi yaratırken, granit mutfak 42 inçlik dolaplar, ticari tarzda bir musluk ve derin bahçeye bakan kahvaltı odasıyla bitişik bar oturma alanına sahip bir ada içeriyor. Birinci kat çalışma odası cam panelli Fransız kapılar sunarken, yemek odası şık bir geometrik vurgu duvarını sergiliyor. Geniş ana süit 14×6 (yaklaşık 4.27m x 1.83m) büyüklüğünde bir yürüyüş dolabı ve çamaşır makinesine doğrudan giden pratik bir çamaşır boşaltma alanı içeriyor. İkinci kat loft/aile odası, çocuklara oyun alanı veya misafirlerin görüş alanının dışında dağınık olma özgürlüğü tanıyor. Alt kat, tam bir banyo için tesisat ile birlikte, alçıpan ile tamamlanmaya hazır hale getirilmiş durumda ve ağaçların arkasındaki 61 metre (yaklaşık 200 feet) derinlikteki bahçeye açılan bir çıkışı var. Mevcut sahipler, evin yapısını düşünceli bir şekilde 12×10 (yaklaşık 3.66m x 3.05m) bir teras, tellerle çevrili bahçe, evcil hayvan kapısı, özelleştirilmiş ayakkabı rafları, iç çamaşır ipi, hem oturma odasında hem de aile odasında özelleştirilmiş eğlence merkezleri ve dayanıklı yüksek kaliteli LVP zemin kaplaması ile geliştirmişler. Mutfak, “görmek için vur” buzdolabı, fırın ve mikrodalga dahil olmak üzere Samsung akıllı aletlerle güncellenmiştir. Diğer özellikler arasında kapalı bir veranda, Bryant HVAC sistemi ve elektrikli araç şarjı için hazır 220 volt priz bulunan garaj yer alıyor. Dışarıda çocuklar için bir zip line ile eğlence bolca mevcut, içeride ise her detayın tadını çıkaracaksınız – evcil hayvan kapısından özelleştirilmiş depolama dokunuşlarına kadar, günlük yaşamı hem pratik hem de keyifli hale getiriyor.
Özellikler ve Olanaklar
Mülk Haritası
Harita
Ödeme Hesaplayıcısı
Ödeme Hesaplayıcısı
- Ana Para ve Faiz
- Emlak Vergisi/aylık
- HOA ücreti












