Arama sonuçlarınız

168 Cartier Street, American Canyon, CA 94503

168 Cartier Street,
$ 772.990

3 Yatak

3 Banyo

2,190.00 ft2

Açıklama

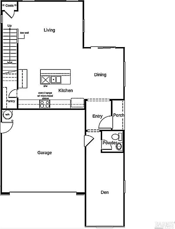
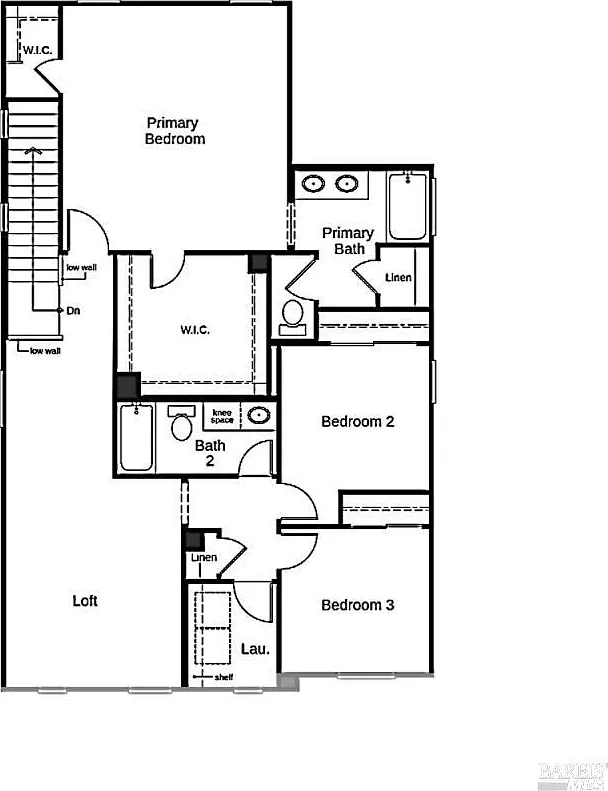
İnşaat aşamasında olan bu davetkar iki katlı ev, 2.74 m yüksekliğinde tavanlar ve açık bir kat planı sunuyor. Ana katta çok amaçlı bir ofis ve tuvalet bulunmakta; 4. yatak odasına ve tam banyoya dönüştürme seçeneği mevcut. Modern mutfak, yaşam alanını gören merkezi bir ada ile stil ve işlevselliği birleştiriyor, bol depolama alanı için yürüyüş tipi kiler ve özel bir yemek alanı sunuyor. Üst katta, ek bir yatak odası seçeneği ile geniş bir loft alanı ve ek konfor için özel bir çamaşır odası mevcut. Ana süit, büyük bir yürüyüş tipi dolapla birlikte rahatlatıcı bir alan olarak özenle tasarlanmış. Enerji verimliliği sağlayan özellikler arasında düşük E camlar, WaterSense® armatürleri, akıllı termostat, elektrikli su ısıtıcı ve Whirlpool® aletler bulunuyor. İnşaat sürerken, mutfak dolapları, tezgah, zemin kaplaması ve banyo seçenekleri gibi belirli tasarım özelliklerini kişiselleştirme fırsatınız olacak. Serrano at Watson Ranch’ta bulunan bu özenle planlanmış topluluk, parklar, yürüyüş yolları, gelecekteki bir şehir merkezi ve planlı bir ilkokul sunmanın yanı sıra Napa Valley Şarap Ülkesi’ne, açık hava etkinliklerine, yeme içme imkanlarına ve ana yollara kolay erişim imkanı sağlıyor.

Özellikler ve Olanaklar

Diğer Özellikler
Diğer

Mülk Haritası

Harita

taşıma
Süpermarketler
Okullar
Restoranlar
Eczaneler
Hastaneler

Ödeme Hesaplayıcısı

Ödeme Hesaplayıcısı

$ 4,673.81
Aylık
  • Ana Para ve Faiz
  • Emlak Vergisi/aylık
  • HOA ücreti
$ 3,707.57

Bu Ev İçin Bize Ulaşın

Gayrimenkul Danışmanı

Sez Sezer

San Diego Gayrimenkul Danışmanı
Üyesi: Keller Williams Realty
License Number: 01988197

/ Gayrimenkul Danışmanı

Benzer İlanlar

Satılık
Aktif

192 Cartier Street, American Canyon, CA 9450...

$ 762.000
İnşaat Aşamasında - Bu davetkar iki katlı ev, 2.74 m tavan yüksekliği ve parlak, açık ve h ...
3 3 2,088.00 ft2ayrıntılar
Satılık
Aktif

161 Ericson St, American Canyon, CA 94503

$ 744.490
Yeni İnşaat!! Güneş Enerjisi Dahil - Napa County'nin kapısı olan güzel Watson Ranch'a hoş ...
4 3 1,799.00 ft2ayrıntılar
Satılık
Aktif

21 Capri Ct, American Canyon, CA 94503

$ 815.595
Satılık Model Ev!! Çamaşır Makinesi, Kurutucu ve Buzdolabı dahildir!! Mobilya yok. Güneş e ...
4 3 1,891.00 ft2ayrıntılar

Listeleri Karşılaştır

Sez Sezer