Arama sonuçlarınız

192 Cartier Street, American Canyon, CA 94503

192 Cartier Street,
$ 762.000

3 Yatak

3 Banyo

2,088.00 ft2

Açıklama

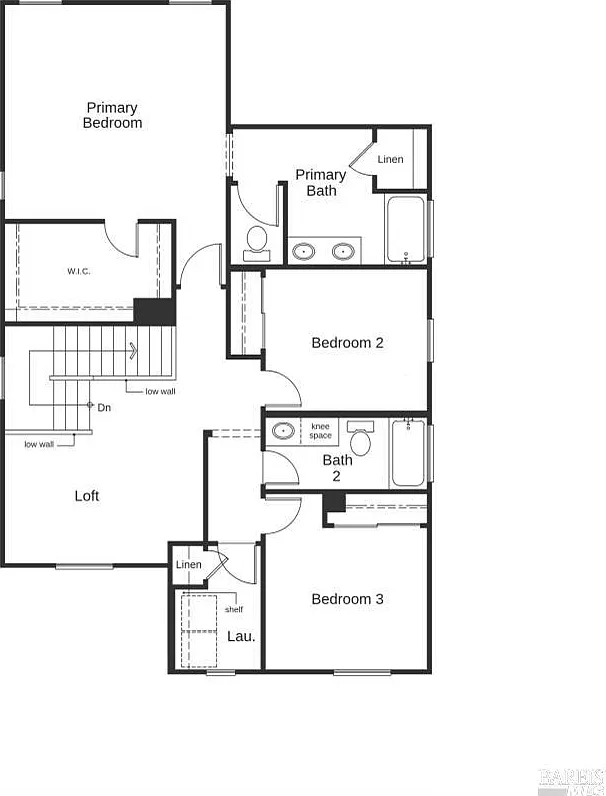
İnşaat Aşamasında – Bu davetkar iki katlı ev, 2.74 m tavan yüksekliği ve parlak, açık ve hoş bir atmosfer yaratan geniş bir oturma odası sunuyor. Ana kat, çok amaçlı bir çalışma odası ve tuvalet, veya isteğe bağlı 4. yatak odası ve tam banyo içeriyor. Modern mutfak, hem işlev hem de stil için tasarlanmış olup, ekstra hazırlık alanı ve rahat yemek alanı için merkezi bir ada ile birlikte bol depolama alanı için bir kiler sunuyor. Üst kısımda, ilave yaşam alanı sağlayan bir loft bulunurken, özel bir çamaşır odası günlük kolaylık sağlıyor. Ana süit, oversized bir kıyafet odası ile vurgulanan rahatlatıcı bir dinlenme alanı olarak hizmet veriyor. Enerji verimliliği özellikleri arasında düşük E camlar, WaterSense® armatürleri, akıllı termostat, elektrikli su ısıtıcı ve Whirlpool® aletleri bulunuyor. İnşaat hâlâ devam ederken, kişisel stilinizi yansıtacak dolap, tezgah, zemin ve banyo seçenekleri gibi tasarım özelliklerini kişiselleştirme ve seçme fırsatını sınırlı bir zaman için elde edeceksiniz. Serrano at Watson Ranch’te bulunan bu düşünceli planlanmış topluluk, parklar, yürüyüş yolları, gelecekteki bir şehir merkezi ve planlanan bir ilkokul ile birlikte Napa Valley Şarap Ülkesi’ne, açık hava etkinliklerine, yeme içme mekanlarına ve ana otobanlara kolay erişim sunuyor.

Özellikler ve Olanaklar

Diğer Özellikler
Diğer

Mülk Haritası

Harita

taşıma
Süpermarketler
Okullar
Restoranlar
Eczaneler
Hastaneler

Ödeme Hesaplayıcısı

Ödeme Hesaplayıcısı

$ 4,607.36
Aylık
  • Ana Para ve Faiz
  • Emlak Vergisi/aylık
  • HOA ücreti
$ 3,654.86

Bu Ev İçin Bize Ulaşın

Gayrimenkul Danışmanı

Sez Sezer

San Diego Gayrimenkul Danışmanı
Üyesi: Keller Williams Realty
License Number: 01988197

/ Gayrimenkul Danışmanı

Benzer İlanlar

Satılık
Aktif

168 Cartier Street, American Canyon, CA 9450...

$ 772.990
İnşaat aşamasında olan bu davetkar iki katlı ev, 2.74 m yüksekliğinde tavanlar ve açık bir ...
3 3 2,190.00 ft2ayrıntılar
Satılık
Aktif

161 Ericson St, American Canyon, CA 94503

$ 744.490
Yeni İnşaat!! Güneş Enerjisi Dahil - Napa County'nin kapısı olan güzel Watson Ranch'a hoş ...
4 3 1,799.00 ft2ayrıntılar
Satılık
Aktif

21 Capri Ct, American Canyon, CA 94503

$ 815.595
Satılık Model Ev!! Çamaşır Makinesi, Kurutucu ve Buzdolabı dahildir!! Mobilya yok. Güneş e ...
4 3 1,891.00 ft2ayrıntılar

Listeleri Karşılaştır

Sez Sezer