2618 Waterford Dr., San Antonio, TX 78217
Açıklama
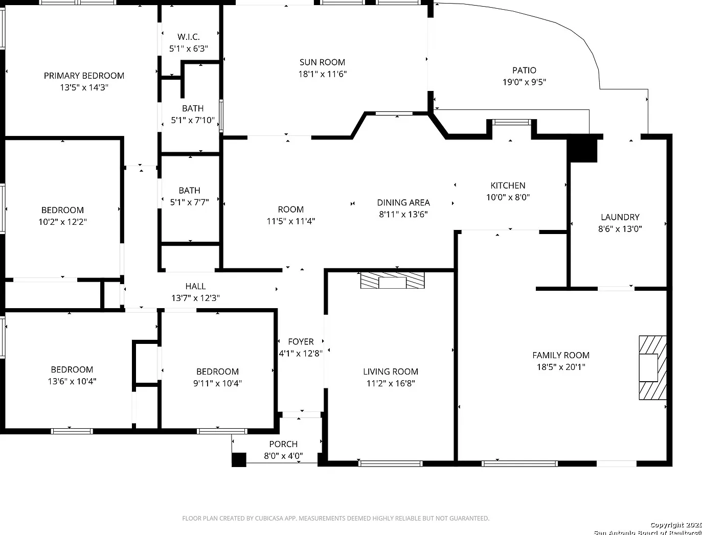
Waterford Drive’a hoş geldiniz! Taşınmaya hazır! İçeri adım atın ve evin her yerinde yer alan güzel ve bakımı kolay Saltillo fayans zeminlere hayran kalın. Yerleşim, parlak, açık ve işlevsel olup günlük yaşam için mükemmel bir alan sunmaktadır. Bu özenle korunmuş 4 yatak odalı, 2 tam banyolu konut, zamansız cazibesi ve modern güncellemeleri ile birlikte toplamda 167 m² konforlu yaşam alanı sunmaktadır. Mutfakta tamamen paslanmaz çelik cihazlar bulunmaktadır. Hazırlık alanını genişletmek isterseniz açık mutfakta bir ada eklemek için yeterli yer mevcuttur. HVAC sistemi 2024’te değiştirilmiştir! Yenilenen garaj, gazlı şömine ile tamamlanan geniş bir aile odasına düşünceli bir şekilde dönüştürülmüştür; bu da onu film geceleri veya evde huzurlu akşamlar için ideal bir buluşma mekanı haline getirir. Florida odası, bol miktarda doğal ışık alarak sakin bir alan oluşturur. Alışveriş, restoranlar, okullar ve havaalanına ideal bir konumda bulunan çok güzel bir mahallede yer almaktadır.
Özellikler ve Olanaklar
Mülk Haritası
Harita
Ödeme Hesaplayıcısı
Ödeme Hesaplayıcısı
- Ana Para ve Faiz
- Emlak Vergisi/aylık
- HOA ücreti












