- Ev
- Townhouse/Condo
- 3537 Pierce Ln, Grand Prairie, TX 75052
3537 Pierce Ln, Grand Prairie, TX 75052
Açıklama
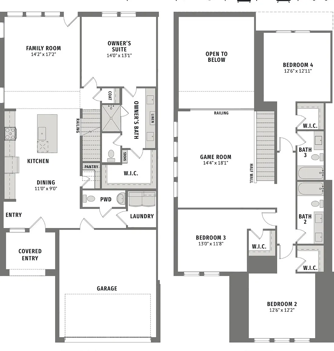
CB JENI HOMES WALKER kat planı. 4 yatak odası, 3.5 banyo ve ALT KATTA BİR ANA SUİTE bulunan harika bir köşe daire kat planı. Bu etkileyici plan, oturma odasında yüksek tavan ve çok sayıda pencere ile oldukça açık bir tasarım sunuyor. Son derece aydınlık ve ferah! Muhteşem ana kat, sert zemin kaplaması, geniş bir oturma alanı, ada ile donatılmış gurme bir mutfak ve şık kuvars tezgahlar içeriyor. Mutfakta ayrıca paslanmaz çelik aletler, gazlı ocak ve dış havalandırma bulunuyor. ALT KATTADAKİ ana suite geniştir ve ayrı lavabolar, büyük bir duş ve oversized bir giyinme odası ile şık bir ensuite banyoya sahiptir. Üst katta büyük bir oyun odası ve 3 misafir yatak odası bulacaksınız. Bir misafir yatak odası ensuite olup, üçünün de giyinme odaları bulunmaktadır. FAZLA BÜYÜK BİR TERASLI ÇİTLİ ARKA BAHÇE!!! Listeleyecek çok fazla seçenek var.
Özellikler ve Olanaklar
Mülk Haritası
Harita
Ödeme Hesaplayıcısı
Ödeme Hesaplayıcısı
- Ana Para ve Faiz
- Emlak Vergisi/aylık
- HOA ücreti











