- Ev
- Townhouse/Condo
- 3538 Pierce Ln, Grand Prairie, TX 75052
3538 Pierce Ln, Grand Prairie, TX 75052
3538 Pierce Ln, Grand Prairie
$ 467.120
Açıklama
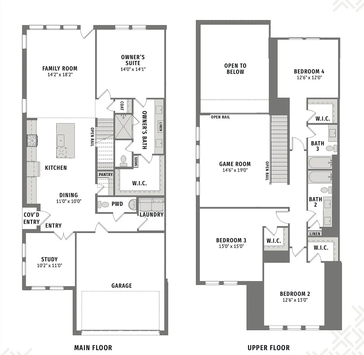
CB JENI HOMES SLOANE kat planı. 4 yatak odası, 3.5 banyo ve AŞAĞI KAT TEMEL SUİT + ÇALIŞMA ODA ile harika bir kat planı. Bu çarpıcı plan, çok açık bir tasarıma sahip olan oturma odasında yüksek tavanlara sahiptir. Son derece aydınlık ve ferah! Muhteşem ana kat, sert zemin döşemesi, büyük bir oturma alanı, ada mutfak ve şık kuvars tezgahlarla dikkat çekiyor. Mutfak ayrıca paslanmaz çelik aletler, gazlı ocak ve dış havalandırma içerir. AŞAĞI KAT temel suit, geniş ve ayrı lavabolarla şık bir ensuite banyoya, büyük bir duşakabine ve geniş bir antreye sahiptir. Üst katta büyük bir oyun odası, 3 misafir yatak odası ve iki tam banyo bulacaksınız. BÜYÜK BİR TERASLI ÇİTLİ ARKA BAHÇE!!! Listelemesi çok fazla seçenek var. HEMEN TAŞINMAYA HAZIR!
Özellikler ve Olanaklar
Diğer Özellikler
Açık Kat Planı
Akıllı Ev
Atık yok edici
Bulaşık makinesi
Dekoratif/Tasarım Aydınlatma Aletleri
Gaz İçin Borulama
Gazlı Aletler
Gazlı ocak
Gazlı su ısıtıcı
Havalandırmalı Egzoz Fanı
Kablo TV
Kapsamlı Su Isıtıcı
Kiler
Mikrodalga
Ön Bahçe Bakımı
Veri için kablolu
yağmur olukları
Yürüyüş Dolabı
Mülk Haritası
Harita
Ödeme Hesaplayıcısı
Ödeme Hesaplayıcısı
$ 2,824.40
Aylık
- Ana Para ve Faiz
- Emlak Vergisi/aylık
- HOA ücreti
$ 2,240.50
Bu Ev İçin Bize Ulaşın
Gayrimenkul Danışmanı
Benzer İlanlar
2823 Linden Ln, Grand Prairie, TX 75052
$ 308.900
Grand Prairie'nin aranan Sheffield Village topluluğunda bulunan bu güzel korunmuş eve hoş ...
Grand Prairie'nin aranan Sheffield Village topluluğunda bulunan bu güzel korunmuş eve hoş geldiniz. 3 yatak odası ve 3 banyo bulunan bu konut, fonksiyonel bir y ...
4720 Barn Owl Trl, Grand Prairie, TX 75052
$ 575.000
Güzel, Geniş Aile Evi, 5 Yatak Odası ve Kıyafetli Çalışma Odası ile birlikte, 6. Yatak Oda ...
Güzel, Geniş Aile Evi, 5 Yatak Odası ve Kıyafetli Çalışma Odası ile birlikte, 6. Yatak Odası olarak kullanılabilir. Dairesel Merdivenli ve Demir Railingli Etkil ...
2228 Sparrow Hawk Ct, Grand Prairie, TX 7505...
$ 450.000
Başlangıç teklifini yansıtan liste fiyatı. Bu taşınmaz, bir açık artırma süreciyle satılac ...
Başlangıç teklifini yansıtan liste fiyatı. Bu taşınmaz, bir açık artırma süreciyle satılacaktır. Son derece arzu edilen High Hawk yerleşkesinde güzel bir ev Bu ...












