84 South St, Foxboro, MA 02035
Açıklama
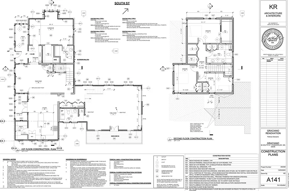
Bu Büyüleyici ve Şık Yenilenmeye Hazır Konut, Seçimlerinizi Özelleştirme ve İlkbahar’da Taşınmak için Sonuçlarını Seçme Konusunda Eşsiz Bir Fırsat Sunuyor! Bu Kolonyal Ev’in Kalbi, dikkatlice tasarlanmış ve geniş diyası, 3.05 m tavanlar ve Tarihi Mimari Detaylarıdır. Plana göre, 1. Kat’ta Oturma Odası, Yemek Odası, Mutfak, En Suite Banyo ile Geniş Ana Oda, Şömine, Fazla Boyutlu Dolap, Çamaşır Makinesi/Sekreter + Ekstra Oda bulunmaktadır. 1. katta ikinci bir tam banyo vardır. Üst katta 3 güzel boyutlu yatak odası ve ek bir tam banyo bulunmaktadır. 6′ pencereler aracılığıyla güneş ışığının dolup taşmasını hayal edin, Booth Field’in yanında parlak ve neşeli bir alan yaratıyor. Bu 1+ dönümlük eşsiz mülkiyet, Parklar, Basketbol Sahaları ve Rekreasyon ile Çevrilidir! Yeşil alanın tadını çıkarmak için mükemmel. Olası ADU Genişlemesi. 6 Yatak Odalı Septik – Yüksek Potansiyel! Kalite Özellikleri Erken Olursa Esnek Olabilir. Hayalinizdeki Evi Özelleştirmek İçin Benzersiz ÖNİNŞAAT Fırsatı!
Özellikler ve Olanaklar
Mülk Haritası
Harita
Ödeme Hesaplayıcısı
Ödeme Hesaplayıcısı
- Ana Para ve Faiz
- Emlak Vergisi/aylık
- HOA ücreti







