929 S Mylea Court, Stockton, CA 95215
Açıklama
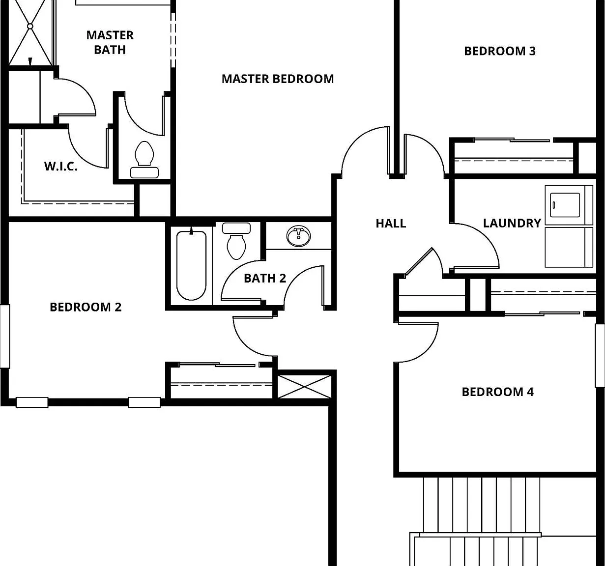
Stinson kat planı, iki katında alan ve konforu ustaca birleştirerek beş yatak odası ve düşünülmüş yaşam alanları sunuyor. İlk katta, evin kalbi açık bir düzenle ortaya çıkıyor; mutfak, oturma odası ve yemek alanı arasında mükemmel bir entegrasyon sağlıyor ve topluluklar için ideal bir yaşam alanı oluşturuyor. Mutfakta geniş bir yürüyüş deposu bulunuyor; bu, gereksinimleri elinizin altında tutmak için mükemmel bir seçenek sunuyor ve beşinci yatak odasına yakın tam bir banyo, çeşitlilik ve kolaylık sağlıyor. Aşağıdaki bu yatak odası, bir misafir süiti veya özel bir ofis olarak hizmet verebilir. İkinci kat, cömert bir ana süit de dahil olmak üzere dört ek yatak odasına ayrılmıştır; bu, bir saklanma alanı atmosferi sunuyor. Ana banyo, çift lavabolu bir tezgah ve modern bir duş ile şık bir şekilde döşenmiştir ve lüks hissini güçlendiriyor. Büyük bir çamaşır odası evin işlevselliğine katkıda bulunuyor, ayrıca ikincil banyo, büyük bir tezgah ve pratik bir küvet/duş kombinasyonu ile donatılmıştır ve tüm ailenin ihtiyaçlarını karşılıyor.
Özellikler ve Olanaklar
Mülk Haritası
Harita
Ödeme Hesaplayıcısı
Ödeme Hesaplayıcısı
- Ana Para ve Faiz
- Emlak Vergisi/aylık
- HOA ücreti





